ГОСТы сталей. ГОСТ 5426-76
ГОСТ 5426-76*
Группа В56
ГОСУДАРСТВЕННЫЙ СТАНДАРТ СОЮЗА ССР
ВОЛОКИ-ЗАГОТОВКИ ИЗ ТВЕРДЫХ СПЕЧЕННЫХ СПЛАВОВ ДЛЯ ВОЛОЧЕНИЯ ШЕСТИГРАННЫХ ПРУТКОВ
Формы и размеры
Die blanks of sintered hardmetals for drawing hexagonal rods. Shape and dimensions
ОКП 19 8400
Дата введения 1978-01-01
Постановлением Государственного комитета стандартов Совета Министров СССР от 5 февраля 1976 г. N 344 срок введения установлен с 01.01.78
ВЗАМЕН ГОСТ 5426-66
* ПЕРЕИЗДАНИЕ (июль 1988 г.) с Изменением N 1, утвержденным в августе 1982 г. (ИУС 12-82)
1. Настоящий стандарт распространяется на волоки-заготовки из твердых спеченных сплавов для волочения шестигранных прутков из черных и цветных металлов.
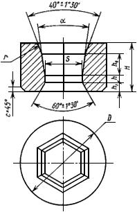
2. Форма и размеры волок-заготовок должны соответствовать указанным на чертеже и в таблице.

Размеры в мм
Обозначение волок- | Приме- | Масса, г (для сплава плотностью 14,6 г/см | |||||||||||||
Номин. | Пред. откл. | Но- | Пред. откл. | Но- | Пред. откл. | Но- | Пред. откл. | ||||||||
1980-0301 | 2,9 | -0,35 | 30 | ±0,7 | 21 | ±0,7 | 1,5 | 2,0 | 10,5 | 3 | 1,5 | 16° | ±1° | 207 | |
1980-0302 | 3,9 | 204 | |||||||||||||
1980-0303 | 4,4 | 202 | |||||||||||||
1980-0304 | 4,9 | 200 | |||||||||||||
1980-0305 | 5,4 | 198 | |||||||||||||
1980-0306 | 5,9 | 2,0 | 197 | ||||||||||||
1980-0307 | 6,9 | -0,45 | 30 | ±0,7 | 21 | ±0,7 | 3,0 | 3,0 | 11,5 | 3 | 1,5 | 16 | ±1 | 195 | |
1980-0308 | 7,9 | 191 | |||||||||||||
1980-0309 | 8,9 | 185 | |||||||||||||
1980-0311 | 9,9 | 179 | |||||||||||||
1980-0312 | 10,9 | -0,50 | 173 | ||||||||||||
1980-0313 | 11,9 | 35 | ±1,0 | 25 | ±0,7 | 3,5 | 13,5 | 4 | 2,0 | 286 | |||||
1980-0314 | 12,9 | 276 | |||||||||||||
1980-0315 | 13,9 | 266 | |||||||||||||
1980-0316 | 14,9 | 256 | |||||||||||||
1980-0317 | 15,9 | 45 | 4,0 | 13,0 | 475 | ||||||||||
1980-0318 | 16,9 | 463 | |||||||||||||
1980-0319 | 17,9 | 451 | |||||||||||||
1980-0321 | 18,9 | 438 | |||||||||||||
1980-0322 | 19,9 | -0,80 | 50 | 28 | 5,0 | 4,0 | 14,0 | 5 | 626 | ||||||
1980-0323 | 20,9 | 610 | |||||||||||||
1980-0324 | 21,9 | 593 | |||||||||||||
1980-0325 | 23,9 | 557 | |||||||||||||
1980-0326 | 24,9 | 538 | |||||||||||||
1980-0327 | 25,9 | 519 | |||||||||||||
1980-0328 | 26,9 | 60 | ±1,2 | 30 | ±1,0 | 6,0 | 4,5 | 2,5 | 18 | 906 | |||||
1980-0329 | 27,9 | 883 | |||||||||||||
1980-0331 | 29,8 | 853 | |||||||||||||
1980-0332 | 31,8 | -0,90 | 787 | ||||||||||||
1980-0333 | 33,8 | 65 | 35 | ±1,5 | 5,0 | 16,0 | 1079 | ||||||||
1980-0334 | 35,8 | 1012 | |||||||||||||
1980-0335 | 37,6 | 948 | |||||||||||||
1980-0336 | 39,6 | -1,50 | 80 | 7,0 | 6 | 1744 | |||||||||
1980-0337 | 40,6 | 1718 | |||||||||||||
1980-0338 | 41,6 | 1680 | |||||||||||||
1980-0339 | 44,6 | 90 | -±1,5 | 40 | ±2,0 | 2501 | |||||||||
1980-0341 | 45,6 | 2451 | |||||||||||||
1980-0342 | 47,6 | 2348 | |||||||||||||
1980-0343 | 49,6 | 2242 | |||||||||||||
1980-0344 | 52,6 | 110 | ±2,0 | 3908 | |||||||||||
1980-0345 | 54,6 | 3791 | |||||||||||||
1980-0346 | 55,6 | 3731 | |||||||||||||
1980-0347 | 59,6 | 3481 | |||||||||||||
1980-0348 | 62,6 | 3283 | |||||||||||||
1980-0349 | 64,6 | 3146 | |||||||||||||
Пример условного обозначения волока-заготовки из сплава ВК8 с номинальным размером 15,9 мм:
Волок-заготовка 1980-0317 ВК8 ГОСТ 5426-76
3. В местах перехода выходного конуса на торец волок-заготовок допускаются скругления радиусом равным линейному размеру фаски.
4. Допускается скругление ребер шестигранника радиусом не более 1,5 мм.
5. Волоки-заготовки должны изготавливаться из твердых спеченных сплавов марок ВК6, ВК8, BК10 по ГОСТ 3882-74.
Волоки-заготовки 1980-03361980-0349 допускается изготавливать из сплава ВК15. Плотность твердого сплава для названных волок-заготовок должна быть в пределах:
ВК6 - 14,815,2 г/см
,
BК8 - 14,715,1 г/см
,
BК10 - 14,414,9 г/см
,
BК15 - 13,914,6 г/с
м.
6. Технические требования, правила приемки, методы испытания и контроля - по ГОСТ 2330-76.
7. Маркировка и упаковка, транспортирование и хранение - по ГОСТ 19106-73.
Электронный текст документа
подготовлен ЗАО "Кодекс" и сверен по:
официальное издание
Волоки-заготовки из твердых спеченных
сплавов для волочения труб круглого сечения
и шестигранных прутков. Формы и размеры.
Технические условия. ГОСТ 2330-76, ГОСТ 5426-76:
Сб. ГОСТов. - М.: Издательство стандартов, 1988
Разместите заказ
сами сделают вам предложение
