ГОСТы сталей. ГОСТ Р 52146-2003
ГОСТ Р 52146-2003
Группа В33
НАЦИОНАЛЬНЫЙ СТАНДАРТ РОССИЙСКОЙ ФЕДЕРАЦИИ
ПРОКАТ ТОНКОЛИСТОВОЙ ХОЛОДНОКАТАНЫЙ
И ХОЛОДНОКАТАНЫЙ ГОРЯЧЕОЦИНКОВАННЫЙ
С ПОЛИМЕРНЫМ ПОКРЫТИЕМ С НЕПРЕРЫВНЫХ ЛИНИЙ
Технические условия
Cold rolled and cold rolled hot-galvanized sheet with polymer coating,
prepainted by the continuous coil-coating process. Specifications
____________________________________________________________________
Текст Сравнения ГОСТ Р 52146-2003 с ГОСТ 34180-2017 см. по ссылке.
- Примечание изготовителя базы данных.
____________________________________________________________________
ОКС 77.140.50
ОКП 11 1200
Дата введения 2004-07-01
Предисловие
1 РАЗРАБОТАН ОАО "Новолипецкий металлургический комбинат"
ВНЕСЕН Техническим комитетом по стандартизации ТК 375 "Металлопродукция из черных металлов и сплавов"
2 ПРИНЯТ И ВВЕДЕН В ДЕЙСТВИЕ Постановлением Госстандарта России от 25 ноября 2003 г. N 330-ст
3 ВВЕДЕН ВПЕРВЫЕ
ВНЕСЕНА поправка, опубликованная в ИУС N 3, 2005 год
Поправка внесена изготовителем базы данных
1 Область применения
1 Область применения
Настоящий стандарт распространяется на тонколистовой холоднокатаный и холоднокатаный горячеоцинкованный прокат с полимерным (лакокрасочным и пластизолевым) покрытием, нанесенным валковым методом в агрегатах непрерывного действия, предназначенный для применения в строительстве, приборостроении, при производстве внешних панелей бытовой техники и других отраслях промышленности, кроме автомобилестроения.
2 Нормативные ссылки
В настоящем стандарте использованы ссылки на следующие стандарты:
ГОСТ 12.3.002-75 Система стандартов безопасности труда. Процессы производственные. Общие требования безопасности
ГОСТ 12.3.005-75 Система стандартов безопасности труда. Работы окрасочные. Общие требования безопасности
ГОСТ 12.3.008-75 Система стандартов безопасности труда. Производство покрытий металлических и неметаллических неорганических. Общие требования безопасности
ГОСТ 380-94 Сталь углеродистая обыкновенного качества. Марки
ГОСТ 1050-88 Прокат сортовой калиброванный, со специальной отделкой поверхности из углеродистой качественной конструкционной стали. Общие технические условия
ГОСТ 6456-82 Шкурка шлифовальная бумажная. Технические условия
ГОСТ 7566-94 Металлопродукция. Приемка, маркировка, упаковка, транспортирование и хранение
ГОСТ 9045-93 Прокат тонколистовой холоднокатаный из низкоуглеродистой качественной стали для холодной штамповки. Технические условия
ГОСТ 9825-73 Материалы лакокрасочные. Термины, определения и обозначения
ГОСТ 14918-80 Сталь тонколистовая оцинкованная с непрерывных линий. Технические условия
ГОСТ 15150-69 Машины, приборы и другие технические изделия. Исполнения для различных климатических районов. Категории, условия эксплуатации, хранения и транспортирования в части воздействия климатических факторов внешней среды
ГОСТ 16523-97 Прокат тонколистовой из углеродистой стали качественной и обыкновенного качества общего назначения. Технические условия
ГОСТ 19851-74 Лента резаная из холоднокатаного проката. Технические условия
ГОСТ 19904-90 Прокат листовой холоднокатаный. Сортамент
ГОСТ 26877-91 Металлопродукция. Методы измерения отклонений формы
3 Определения
В настоящем стандарте применяют следующие термины с соответствующими определениями:
3.1 полимерное (лакокрасочное, пластизолевое) покрытие: Пленка на основе высокомолекулярных соединений на поверхности проката, сформированная при горячей сушке нанесенных валковым методом жидких лакокрасочных материалов (грунтовок, отделочных и защитных эмалей, пластизолей) и обладающая комплексом защитных, декоративных, физико-механических и других специальных свойств.
3.2 грунтовочный слой: Нижний слой в системе двухслойного полимерного покрытия, наносимый непосредственно на металлическую поверхность, предназначенный для обеспечения прочного сцепления и высокой коррозионной стойкости полной системы покрытия.
3.3 лицевая сторона проката с полимерным покрытием: Сторона, подвергающаяся влиянию внешних воздействий.
3.4 обратная сторона проката с полимерным покрытием: Сторона, противоположная стороне, подверженной влиянию внешних воздействий.
3.5 необрезная кромка проката с полимерным покрытием: Кромка, которую не обрезают после стана холодной прокатки.
3.6 двухслойное полимерное покрытие: Покрытие, состоящее из слоя грунта и слоя отделочной эмали или пластизоля.
3.7 однослойное покрытие: Покрытие обратной стороны проката, состоящее из слоя защитной эмали без регламентирующих требований к внешнему виду, коррозионной стойкости, деформируемости и т.д.
3.8 прокат с односторонним полимерным покрытием: Прокат с двухслойным полимерным покрытием на лицевой стороне и однослойным полимерным покрытием на обратной стороне.
Примечание - На обратной стороне проката однослойное покрытие наносят с целью защиты от механических повреждений покрытия лицевой стороны проката во время транспортирования и хранения у потребителя.
3.9 прокат с двусторонним полимерным покрытием: Прокат с двухслойным полимерным покрытием на лицевой и обратной сторонах.
3.10 обрезная кромка проката с полимерным покрытием: Кромка, которую обрезают после холодной прокатки и термической обработки перед обработкой на линии агрегата полимерных покрытий.
4 Классификация, сортамент
4.1 Прокат с полимерным покрытием подразделяют:
по виду продукции на:
- листы,
- рулоны,
- ленту резаную в рулонах;
по виду основы на:
- прокат тонколистовой холоднокатаный,
- прокат тонколистовой холоднокатаный горячеоцинкованный;
по типу покрытий на:
- ЛКП - лакокрасочное покрытие холоднокатаного проката,
- ЛКПОЦ - лакокрасочное покрытие холоднокатаного горячеоцинкованного проката,
- ПЗП - пластизолевое покрытие холоднокатаного проката,
- ПЗПОЦ - пластизолевое покрытие холоднокатаного горячеоцинкованного проката;
по виду покрытий на:
- одностороннее - I,
- двустороннее - II;
по способности к вытяжке основы:
- СВ - сложной,
- ВГ - весьма глубокой,
- Г - глубокой,
- Н - нормальной;
по точности прокатки основы:
- AT - повышенной точности,
- БТ - нормальной точности;
по плоскостности на:
- ПВ - высокой,
- ПУ - улучшенной,
- ПН - нормальной;
по характеру кромки:
- НО - с необрезной кромкой,
- О - с обрезной кромкой;
по внешнему виду поверхности двухслойного покрытия (в соответствии с таблицей 3) на два класса: 1 и 2.
4.2 С учетом типа, вида и класса покрытия готовый прокат имеет следующие обозначения:
ЛКП - I/1 | ЛКП - I/2 | ЛКП - II/1 | |||
ЛКПОЦ - I/1 | ЛКПОЦ - I/2 | ЛКПОЦ - II/1 | |||
ПЗП - I/1 | ПЗП - I/2 | ЛКП - II/2 | |||
ПЗПОЦ - I/1 | ПЗПОЦ - I/2 | ЛКПОЦ - II/2 | |||
4.3 Схема условных обозначений проката с полимерным покрытием приведена в приложении А.
4.4 Размеры основы:
4.4.1 Толщина, мм:
- холоднокатаной - 0,35-2,00;
- холоднокатаной горячеоцинкованной - 0,35-2,00.
4.4.2 Ширина, мм:
- рулона, листа - 500-1800;
- ленты - 100-499.
4.4.3 Длина листов - из ряда размеров по ГОСТ 19904.
4.5 Предельные отклонения по толщине основы;
- холоднокатаной (рулон, лист) - по ГОСТ 19904;
- ленты - по ГОСТ 19851;
- горячеоцинкованной (рулон, лист) - по ГОСТ 14918.
4.6 Предельные отклонения по ширине проката с полимерным покрытием, мм:
- с необрезной кромкой - от 0 до плюс 20;
- с обрезной кромкой - от 0 до плюс 5.
4.7 Отклонение от плоскостности, серповидность и требования к кромке листов - по ГОСТ 19904.
4.8 Телескопичность рулона должна быть не более 20 мм.
4.9 Внутренний диаметр рулона - 500-600 мм.
4.10 Максимальная масса, т:
- рулона - 16,0;
- пачки листов - 10,0;
- рулона резаной ленты - 5,0.
5 Технические требования
5.1 Прокат с полимерным покрытием изготовляют в соответствии с требованиями настоящего стандарта по технологическому регламенту, утвержденному в установленном порядке.
5.2 Химический состав основы - по ГОСТ 380, ГОСТ 1050, ГОСТ 9045, ГОСТ 14918 или другим нормативным документам по согласованию с потребителем.
5.3 Требования по механическим свойствам основы
5.3.1 Для холоднокатаной основы при способности к вытяжке СВ, ВГ - по ГОСТ 9045, при способности к вытяжке Г, Н - по ГОСТ 16523.
5.3.2 Для холоднокатаной горячеоцинкованной основы при способности к вытяжке СВ - по ГОСТ 9045, при способности к вытяжке ВГ, Г, Н - по ГОСТ 14918.
5.4 Материалы, применяемые для изготовления полимерного покрытия, их обозначения и диапазон толщины приведены в таблице 1.
Таблица 1
Материал покрытия | Обозначение | Диапазон толщины, мкм | |
по ГОСТ 9825 | по [1] | ||
Грунтовки: | |||
акрилатный грунт | - | - | 5-7 |
полиэфирный грунт | - | - | 5-7 |
эпоксидный грунт | - | - | 5-7 |
Отделочные эмали: |
|
|
|
полиэфирная эмаль | ПЭ, ПЛ | SP | 20-30* |
полиуретановая эмаль | УР | PUR | 20-60* |
поливинилденфторидная эмаль (ПВДФ) | ФП | PVDF | 20-60* |
ПВХ пластизоль (ПЗ) | ХВ | PVC (Р) | 100-200* |
Защитные эмали: |
|
|
|
эпоксидная эмаль | ЭП | ЕР | 10-18 |
* Общая толщина покрытия вместе с грунтом. | |||
По согласованию между изготовителем и потребителем допускается применение других типов материалов. Нормативным документом на лакокрасочный материал является документ о качестве изготовителя данного материала.
5.5 Цвет полимерного покрытия на лицевой и обратной сторонах проката устанавливают по согласованию между изготовителем и потребителем.
5.6 Номинальную толщину полимерного покрытия на лицевой и обратной сторонах проката и количество слоев покрытия устанавливают по согласованию между изготовителем и потребителем.
5.6.1 Предельные отклонения толщины полимерного покрытия на лицевой стороне проката в зависимости от диапазона номинальной толщины представлены в таблице 2.
Таблица 2
В микрометрах
Предельное отклонение толщины полимерного покрытия | Номинальная толщина полимерного покрытия | ||||||
Св. 10 до 20 включ. | Св. 20 до 25 включ. | Св. 25 до 35 включ. | Св. 35 до 60 включ. | Св. 60 до 100 включ. | Св. 100 до 200 включ. | Св. 200 до 500 включ. | |
Нижнее отклонение для среднего значения толщины покрытия из трех измерений | 3 | 4 | 5 | 8 | 15 | 20 | 30 |
Нижнее отклонение для значения толщины покрытия при каждом из трех проведенных измерений | 4 | 5 | 7 | 12 | 20 | 25 | 35 |
Примечания | |||||||
5.7 Толщину, предельные отклонения по толщине и дополнительные требования к покрытию обратной стороны проката устанавливают по согласованию между изготовителем и потребителем.
5.8 Внешний вид проката с двухслойным полимерным покрытием должен соответствовать требованиям таблицы 3.
Таблица 3
Класс покрытия | Тип покрытия | Характеристика внешнего вида покрытия на лицевой стороне проката |
1 | ЛКП, ЛКПОЦ | Поверхность покрытия должна быть однотонной. |
1 | ПЗП, ПЗПОЦ | Поверхность покрытия должна быть однотонной с тиснением или без тиснения. |
2 | ЛКП, ЛКПОЦ, ПЗП, ПЗПОЦ | Кроме дефектов, указанных для 1-го класса покрытия, допускаются: |
Примечание - Характеристики внешнего вида определяют визуально без применения увеличительных приборов. | ||
5.9 Однослойное защитное полимерное покрытие на обратной стороне проката должно быть сплошным. По согласованию сторон допускаются непрокрасы, шагрень, штрихи, риски, включения.
5.10 В рулонах и пачках проката с полимерным покрытием 1-го класса допускается до 5% проката с полимерным покрытием 2-го класса.
5.11 В рулонах проката с полимерным покрытием допускается не более одного шва. При этом качество поверхности полимерного покрытия на расстоянии до 5 м от шва в обе стороны не регламентируется.
5.12 Показатели качества двухслойного полимерного покрытия на лицевой стороне проката и методы испытаний приведены в таблице 4.
Таблица 4
Показатель качества полимерных покрытий | Значение показателя качества полимерных покрытий | Метод испытаний | |
лакокрасочного | пластизолевого | ||
1 Адгезия, баллы | 0 | 0 | Приложение Г |
2 Прочность при обратном ударе, Дж | 5-10 | 10-15 | Приложение Д |
3 Прочность при растяжении по Эриксену, мм | Не менее 6 | Не менее 6 | Приложение Е |
4 Прочность при изгибе на 180° | Не более 3Т | Не более 1Т | Приложение Ж |
5 Твердость полимерного покрытия | F-H-2H | F-H | Приложение И |
6 Цветовое различие | Не более 1 | Не более 1 | Приложение К |
7 Блеск, % | 10-80 | 10-60 | Приложение Л |
Примечания | |||
Указанные показатели качества полимерного покрытия согласовываются между изготовителем и потребителем и зависят от типа применяемых лакокрасочных материалов.
5.13 По согласованию между изготовителем и потребителем могут быть установлены дополнительные специальные показатели качества полимерного покрытия.
5.14 Для защиты поверхности полимерного покрытия от механических повреждений при транспортировании и переработке допускается нанесение на лицевую сторону проката легко удаляемой полимерной пленки (самоклеящейся или термокашированием).
6 Правила приемки
6.1 Правила приемки проката с полимерным покрытием - по ГОСТ 7566.
6.2 Прокат с полимерным покрытием принимают партиями. Партия должна состоять из металла одной марки стали, одной плавки, одного вида покрытия, одного вида проката, одного цвета и тиснения пленки, одного размера, изготовленной в одном технологическом режиме.
6.3 Партию проката с полимерным покрытием сопровождают документом о качестве в соответствии с ГОСТ 7566.
Показатели качества полимерного покрытия и данные химического состава в документе о качестве указывают по требованию потребителя.
6.4 Для контроля соответствия проката с полимерным покрытием требованиям настоящего стандарта от партии отбирают одну пачку или один рулон.
7 Методы контроля
7.1 Геометрические размеры основы измеряют:
- толщину - на расстоянии не менее 20 мм от кромки и не менее 2 м от конца рулона;
- ширину - на расстоянии не менее 2 м от конца рулона;
- серповидность и отклонение от плоскостности - по ГОСТ 26877.
Телескопичкость рулонов проката с покрытием определяют по ГОСТ 26877.
7.2 Испытания основы проводит изготовитель до нанесения полимерного покрытия.
Результаты испытаний записывают в документе о качестве по требованию потребителя.
7.3 Контроль внешнего вида поверхности полимерного покрытия и кромок проводят без применения увеличительных приборов.
7.4 Для проведения испытаний отбирают один лист от контрольной пачки и один отрезок длиной 1 м от конца или начала контрольного рулона. Отбор образцов (проб) от листа или отрезка - в соответствии с приложением Б.
7.5 Метод измерения толщины полимерного покрытия приведен в приложении В.
7.6 Метод определения адгезии полимерного покрытия (метод решетчатых надрезов) - в приложении Г.
7.7 Метод определения прочности полимерного покрытия при обратном ударе - в приложении Д.
7.8 Метод определения прочности покрытия при растяжении по Эриксену - в приложении Е.
7.9 Метод измерения прочности полимерного покрытия при изгибе - в приложении Ж.
7.10 Метод измерения твердости полимерного покрытия - в приложении И.
7.11 Метод измерения цветового различия материалов с полимерным покрытием - в приложении К.
7.12 Метод измерения блеска полимерного покрытия - в приложении Л.
7.13 По согласованию между изготовителем и потребителем допускается применение других методов испытаний качества полимерного покрытия.
8 Упаковка, маркировка, транспортирование и хранение
8.1 Упаковка, маркировка, транспортирование и хранение - по ГОСТ 7566 с дополнениями.
8.2 Упаковка проката с полимерным покрытием должна предохранять от попадания влаги на торцы пачек и рулонов и в межвитковое пространство рулонов, а также предохранять рулоны и пачки от механических повреждений при их транспортировании.
8.3 Каждый рулон (пачку) снабжают упаковочным ярлыком или биркой с указанием наименования предприятия-поставщика, номера партии, марки стали, геометрических размеров проката с полимерным покрытием и цвета покрытия, массы нетто, длины полосы в рулоне или количества листов в пачке, номера настоящего стандарта.
8.4 Прокат транспортируют всеми видами транспорта в соответствии с правилами перевозки грузов, действующими на конкретном виде транспорта.
8.5 Прокат с полимерным покрытием должен храниться в условиях, соответствующих требованиям ГОСТ 15150 для условий хранения Ж3.
8.6 Изготовление изделий из проката с лакокрасочным покрытием осуществляют при температуре не ниже плюс 15 °С, с пластизолевым покрытием - при температуре не ниже плюс 10 °С.
Максимальный срок хранения проката с полимерным покрытием до его переработки у потребителя не должен превышать 6 мес с момента (дня) изготовления проката.
9 Требования безопасности
9.1 Прокат с полимерным покрытием является нетоксичным и нсгорючим материалом.
9.2 Требования к обеспечению пожарной безопасности при производстве проката с полимерным покрытием должны соответствовать ГОСТ 12.3.002, ГОСТ 12.3.005 и ГОСТ 12.3.008.
9.3 Все работы, связанные с применением проката с полимерным покрытием, следует проводить с соблюдением требований безопасности по ГОСТ 12.3.002 и ГОСТ 12.3.005.
9.4 Производственный контроль за соблюдением санитарных правил и выполнением санитарно-противоэпидемических (профилактических) мероприятий проводят в соответствии с требованиями санитарных правил [2].
9.5 Условия производства, упаковывания, транспортирования и хранения тонколистового холоднокатаного и холоднокатаного горячеоцинкованного проката с полимерным (лакокрасочным, пластизолевым) покрытием не должны оказывать вредного воздействия на человека.
ПРИЛОЖЕНИЕ А (обязательное). Схема условных обозначений проката с полимерным покрытием
ПРИЛОЖЕНИЕ А
(обязательное)

Примечание - При отсутствии какого-либо из параметров его выбирает предприятие-изготовитель.
Пример условного обозначения проката с полимерным покрытием
Лист холоднокатаный горячеоцинкованный с лакокрасочным двусторонним покрытием (II) внешнего вида поверхности класса 2 (ЛКПОЦ II/2), нормальной точности прокатки (БТ), нормальной плоскостности (ПН), с обрезной кромкой (О), размерами 0,40х500х1200 мм, сложной вытяжки (СВ), из стали марки 08Ю по ГОСТ 9045-93:
Лист | ЛКПОЦ II/2-БТ-ПН-О-0,40х500х1200 ГОСТ 19904-90 | |||
| СВ-08Ю ГОСТ 9045-93 ГОСТ Р 52146-2003 | |||
ПРИЛОЖЕНИЕ Б (обязательное). Схема отбора проб для проведения контрольных испытаний
ПРИЛОЖЕНИЕ Б
(обязательное)
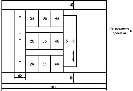
Рисунок Б.1

Примечание - "*" обозначает место испытания.
Рисунок Б.1
Наименование показателя, обозначение (в соответствии с рисунком Б.1), размеры и количество образцов приведены в таблице Б.1.
Таблица Б.1
Наименование показателя | Обозначение образцов | Размеры образцов, мм | Количество, шт. |
Толщина покрытия | 2а; 2б; 2в | 90х90 | 3 |
Блеск, цветовое различие | |||
Адгезия | За; 3б; 3в | 90х90 | 3 |
Твердость покрытия | |||
Прочность при обратном ударе | 4а; 4б; 4в | 90х90 | 3 |
Прочность при изгибе Т | 5 | 40x400 | 2 |
Прочность при растяжении | 1 | 90 x ширина проката с учетом отступа (50 мм) от кромок | 1 |
ПРИЛОЖЕНИЕ В (обязательное). Метод измерения толщины полимерного покрытия
ПРИЛОЖЕНИЕ В
(обязательное)
B.1 Условия измерений
При проведении измерений соблюдают следующие условия:
- температура воздуха в рабочем помещении - (20±5) °С;
- относительная влажность воздуха в рабочем помещении - (50±5)%.
В.2 Метод измерения
Магнитоиндукционный метод измерения толщины полимерного покрытия в диапазоне измерений от 2 до 2000 мкм основан на определении изменений магнитного сопротивления участка цепи преобразователь - контролируемая деталь, зависящего от толщины покрытия, по электродвижущей силе, наводимой в измерительной обмотке преобразователя, питающегося переменным током низкой частоты.
В.3 Средства измерений, вспомогательные устройства, материалы
Толщиномер типа "Permascope" M10/M10B или любой другой, имеющий аналогичные технические и метрологические характеристики:
диапазон измерения толщины - 0,002-2 мм;
точность измерения - 2% +1 мкм.
Меры толщины для измерения толщины полимерного покрытия электрическими измерительными устройствами.
Психрометр любого типа, обеспечивающий измерение относительной влажности от 30% до 80% с погрешностью не более 10%.
Термометр, обеспечивающий измерение температуры в помещении от 0 °С до 35 °С, с ценой деления 0,5 °С:
Растворитель любого типа, снимающий полимерное покрытие.
Нож.
В.4 Подготовка к выполнению измерений
В.4.1 После термической обработки образцы с полимерным покрытием должны остыть до температуры воздуха рабочего помещения.
В.4.2 Магнитоиндукционный метод измерения толщины полимерного покрытия применяют только к продукции с гладкой и плоской подложкой, органическое покрытие может быть структурированным.
В.4.3 Магнитоиндукционный метод не разрушает покрытия при измерении толщины полимерного покрытия на металлических подложках из холоднокатаной стали. В данном случае нет возможности электрическим зондом измерить одновременно металлическое и органическое покрытия. Сначала измеряют общую толщину металлического и полимерного покрытий. После удаления слоя краски толщину металлического покрытия следует измерить в том же месте. Разность между значением общей толщины и значением толщины металлического покрытия равна толщине полимерного покрытия. Органическое покрытие удаляют при помощи соответствующего растворителя. После определенного времени контакта с растворителем размягченное покрытие удаляют при помощи абразива и (или) тупого ножа. Абразивная обработка не должна затрагивать металлическое покрытие.
В.5 Порядок выполнения измерений
В.5.1 Настройка прибора
Прибор настраивают в соответствии с документацией (Техническим описанием, Инструкцией по эксплуатации и др.). При настройке прибора на "ноль" используют пластинку металла без полимерного покрытия, которая имеет такую же форму, толщину, магнитные свойства, как у контролируемых образцов. Она должна иметь гладкую плоскую поверхность без грязи и царапин.
При настройке прибора используют меры толщины. Выбирают шкалу с максимальным значением, превышающим расчетную толщину покрытия, и минимальным значением ниже расчетной толщины покрытия.
В.5.2 Выполнение измерений
Помещают зонд на образец с полимерным покрытием. Проводят не менее трех измерений толщины покрытия на гладких поверхностях и не менее пяти измерений на структурированных поверхностях.
В.6 Обработка результатов измерений
За результат измерений принимают среднеарифметическое параллельных определений толщины полимерного покрытия.
В.7 Результаты измерений записывают с точностью до десятых долей, окончательный результат определения толщины полимерного покрытия округляют до целого числа.
В.8 Погрешность данного метода определяется погрешностью измерительного прибора.
ПРИЛОЖЕНИЕ Г (обязательное). Метод определения адгезии полимерного покрытия (метод решетчатых надрезов)
ПРИЛОЖЕНИЕ Г
(обязательное)
Г.1 Условия измерений
При выполнении измерений соблюдают следующие условия:
- температура воздуха в рабочем помещении - (20±5) °С;
- относительная влажность воздуха в рабочем помещении - (50±5)%.
Г.2 Метод решетчатых надрезов
Метод основан на нанесении решетчатых надрезов в диапазоне от 0 до 5 баллов на готовое органическое покрытие с разрушением полимерного покрытия и последующей оценкой результатов испытаний.
Г.3 Средства измерений, вспомогательные устройства, материалы
Режущий инструмент с углом заточки режущей кромки от 20° до 30° и толщиной лезвия (0,43±0,03) мм.
Кисть.
Прозрачная липкая лента любого типа шириной не менее 25 мм.
Лупа с трехкратным увеличением любого типа.
Психрометр любого типа, обеспечивающий измерение относительной влажности от 30% до 80% с погрешностью не более 10%.
Термометр, обеспечивающий измерение температуры в помещении от 0 °С до 35 °С, с ценой деления 0,5 °С.
Испытательная машина типа ИА 5073 или любая другая, имеющая аналогичные технические и метрологические характеристики:
пресс-форма внутренним диаметром (27+1) мм;
пуансон пресс-формы - сфера диаметром (20±1) мм;
скорость движения пуансона - (12+6) мм/мин.
Линейка металлическая любого типа длиной 300 мм и ценой деления 1 мм.
Г.4 Подготовка к выполнению измерений
Г.4.1 После обработки на агрегате полимерного покрытия образцы с полимерным покрытием должны остыть до температуры воздуха рабочего помещения.
Г.4.2 Образцы должны иметь гладкую поверхность. Расстояние от решетки до края образца должно быть не менее 5 мм
Г.5 Порядок выполнения измерений
Г.5.1 Наносят надрезы на полимерное покрытие в виде решетки.
Г.5.2 Расстояние между надрезами
Расстояние между надрезами в каждом направлении должно быть одинаковым и зависеть от толщины покрытия и типа основы (таблица Г.1).
Таблица Г.1
Расстояние между надрезами, мм | Толщина покрытия, мкм | Твердость покрытия |
1 ± 0,1 | 0-60 | Твердое |
2 ± 0,1 | 0-60 | Мягкое |
2 ± 0,1 | 61-120 | Твердое, мягкое |
3 ± 0,1 | 121-250 | Твердое, мягкое |
Г.5.3 Надрезы и удаление покрытия проводят вручную.
Г.5.4 Помещают испытательный образец на твердую ровную поверхность с целью предотвращения деформации образца во время испытания.
Г.5.5 Выполняют параллельные надрезы режущим инструментом. Затем выполняют параллельные надрезы перпендикулярно к первоначальным надрезам таким образом, чтобы образовалась решетка. Режущий инструмент необходимо держать перпендикулярно к поверхности образца, движения должны быть равномерными. Все надрезы должны доходить до основы образца (металл, оцинкованное покрытие).
Для мягких покрытий осторожно очищают поверхность кистью.
Для твердых покрытий применяют липкую ленту длиной 75 мм, которую накладывают на решетку в направлении, параллельном одному ряду надрезов.
Плотно прижимают ленту к решетке, оставляя один конец полоски неприклеенным. Затем резким движением отрывают ленту под острым углом к поверхности образца.
Для проката с пластизолевым покрытием делают по два надреза во взаимно перпендикулярных направлениях. Размер полученного квадрата должен быть 5 мм. После выдавливания сферической лунки глубиной 6 мм в месте надреза не должно быть отслаивания пленки (пластизоля). Для выдавливания сферической лунки используют прибор типа ИА 5073 или любой другой, имеющий аналогичные технические и метрологические характеристики. Прибор настраивают в соответствии с документацией (Техническим описанием, Инструкцией по эксплуатации и др.). При этом скорость движения пуансона должна быть равномерной и равной (12+6) мм/мин.
Г.6 Оценка результатов испытаний
Оценку результатов испытаний проводят сразу после удаления липкой ленты. Осматривают площадь с надрезами или липкую ленту при хорошем освещении без помощи приборов или с лупой (по договоренности с потребителем).
Для определения адгезии по данной методике используют таблицу Г.2.
Таблица Г.2 - Классификация результатов испытаний
Классификация | Описание |
0 | Края надрезов ровные, нет признаков отслаивания ни в одном квадрате решетки |
1 | Незначительное отслаивание покрытия в виде мелких чешуек в местах пересечения линий решетки. Нарушение наблюдается не более чем на 5% поверхности решетки |
2 | Частичное или полное отслаивание покрытия вдоль мелких надрезов решетки или в местах их пересечения. Нарушение наблюдается не менее чем на 5% и не более чем на 15% поверхности решетки |
3 | Частичное или полное отслаивание покрытия вдоль линии надрезов решетки или в местах их пересечения. Нарушение наблюдается не менее чем на 15% и не более чем на 35% поверхности решетки |
4 | Полное отслаивание или частичное, превышающее 35% поверхности решетки |
Испытания проводят на трех образцах. За окончательный результат испытаний принимают максимальное значение адгезии в баллах на трех образцах.
ПРИЛОЖЕНИЕ Д (обязательное). Метод определения прочности полимерного покрытия при обратном ударе
ПРИЛОЖЕНИЕ Д
(обязательное)
Д.1 Условия измерений
При выполнении измерений соблюдают следующие условия:
- температура воздуха в рабочем помещении - (20±5) °С;
- относительная влажность воздуха в рабочем помещении - (50±5)%.
Д. 2 Метод измерения
Метод определения прочности полимерного покрытия при обратном ударе в диапазоне от 0 до 20 Дж основан на воздействии падающего груза и определении высоты, при которой происходит деформация полимерного покрытия.
Д.3 Средства измерений, вспомогательные устройства, материалы
Испытательный прибор с падающей гирей.
Две гири массой по (1000,0±1,0) г каждая.
Боек диаметром шарика (20±1) мм.
Наковальня диаметром отверстия (27±1) мм.
Лупа любого типа с десятикратным увеличением.
Психрометр любого типа, обеспечивающий измерение относительной влажности от 30% до 80% с погрешностью не более 10%.
Термометр, обеспечивающий измерение температуры в помещении от 0 °С до 35 °С, с ценой деления 0,5 °С.
Д.4 Подготовка к выполнению измерений
Д.4.1 Для данного метода испытаний используют образцы с плоской поверхностью, недеформированные и толщиной не менее 0,25 мм.
Д.5 Порядок выполнения измерений
Проводят по одному испытанию на каждом образце. Испытуемый образец помещают в прибор полимерным покрытием вниз. Поднимают гирю на определенную высоту (10, 20, 30, 40, 50, 60, 70, 80, 90, 100 см) и дают упасть грузу на образец, затем рассматривают покрытие при помощи лупы. Покрытие считают выдержавшим испытание, если не образовалось трещин и не появилось отслоение от грунтового покрытия. Испытания начинают с минимальной высоты падения груза (10 см) и постепенно увеличивают ее до появления на покрытии трещин и (или) отслоения покрытия.
Д.6 Обработка результатов измерений
За результат измерения принимают значение наибольшей высоты падения груза, при которой на покрытии не наблюдается трещин и отслоений от грунтового покрытия. Проводят три испытания на трех образцах. За окончательный результат испытаний принимают наименьшую (из трех) высоту падения груза.
ПРИЛОЖЕНИЕ Е (обязательное). Метод определения прочности покрытия при растяжении по Эриксену
ПРИЛОЖЕНИЕ Е
(обязательное)
E.1 Условия измерений
При выполнении измерений должны соблюдаться следующие условия:
- температура воздуха в рабочем помещении - (20±5) °С;
- относительная влажность воздуха в помещении - (50±5)%.
Е.2 Метод измерения
Метод определения прочности покрытия при растяжении основан на растяжении образца сферическим пуансоном до образования на выдавленном участке трещин и (или) отслоения от грунта.
Е.3 Средства измерений, вспомогательные устройства, материалы
Испытательная машина типа ИА 5073 или любая другая, имеющая аналогичные технические и метрологические характеристики:
пресс-форма внутренним диаметром (27+1) мм;
пуансон пресс-формы - сфера диаматром (20±1) мм;
скорость движения пуансона - (12+6) мм/мин.
Пуансон диаметром (20±2) мм.
Матрица внутренним диаметром (27±1) мм.
Психрометр любого типа, обеспечивающий измерение относительной влажности от 30% до 80% с погрешностью не более 10%.
Термометр, обеспечивающий измерение температуры в помещении от 0 °С до 35 °С, с ценой деления 0,5 °С.
Е.4 Подготовка к выполнению измерений
Е.4.1 Для данного метода используют образцы с плоской поверхностью, недеформированные, с толщиной основы в соответствии с 4.4.1 настоящего стандарта.
Е.5 Порядок выполнения измерений
Прибор подготавливают в соответствии с документацией (Техническим описанием, Инструкцией по эксплуатации и др.). При испытаниях скорость движения пуансона должна быть равномерной и равной (12+6) мм/мин. Усилие прижима образца между матрицей и прижимным кольцом должно быть от 10 до 20 кН.
Испытание проводят, увеличивая размер углубления до тех пор, пока не будут обнаружены трещины и (или) начало отслоения покрытия (эмали). Результатом испытаний является максимальный размер углубления, при котором не обнаруживаются трещины и (или) отслоение покрытия (эмали). Проводят три измерения на разных образцах. За окончательный результат испытаний принимают минимальный (из трех) размер глубины лунки, при котором на покрытии отсутствуют трещины и отслоения.
ПРИЛОЖЕНИЕ Ж (обязательное). Метод измерения прочности полимерного покрытия при изгибе
ПРИЛОЖЕНИЕ Ж
(обязательное)
Ж.1 Условия измерений
При выполнении измерений соблюдают следующие условия:
- температура воздуха в рабочем помещении - (20±5) °С;
- относительная влажность воздуха в рабочем помещении - (50±5)%.
Ж.2 Метод измерения
Данный метод измерения прочности полимерного покрытия при изгибе от 0Т и более основан на изгибе образца на 180° до образования трещин.
Ж.3 Средства измерений, вспомогательные устройства, материалы
Лупа любого типа с десятикратным увеличением.
Тиски любого типа.
Психрометр любого типа, обеспечивающий измерение относительной влажности от 30% до 80% с погрешностью не более 10%.
Термометр, обеспечивающий измерение температуры в помещении от 0 °С до 35 °С, с ценой деления 0,5 °С.
Ж.4 Подготовка к выполнению измерений
Ж.4.1 На поверхности образца не должно быть загрязнений (масла, пыли, песка, технической смазки от ножей), которые могут повлиять на результаты испытаний или помешать наблюдению за растрсскиванием или адгезией.
Ж.4.2 Испытываемое покрытие всегда должно быть с внешней стороны изгиба.
Ж.4.3 При оценке результатов испытаний не принимают во внимание участки на расстоянии до 5 мм от кромок.
Ж.5 Порядок выполнения измерений
Пластину изгибают до 180° на расстоянии (25±0,5) мм от его края (покрытие сверху) и затем сжимают в тисках до соприкосновения сторон (рисунок Ж.1).
Рисунок Ж.1 - Схема измерения прочности полимерного покрытия при изгибе

Рисунок Ж.1 - Схема измерения прочности полимерного покрытия при изгибе
Состояние покрытия на изгибе рассматривают без помощи приборов или с лупой (по договоренности с потребителем).
Если на поверхности покрытия отсутствуют трещины, то прочность при первом изгибе соответствует 0Т. В случае наличия трещин испытания продолжают указанным выше способом. При отсутствии трещин прочность пленки при втором изгибе составляет Т. При наличии трещин образец изгибают третий раз. При отсутствии трещин прочность покрытия составит 1T. Пластину изгибают до исчезновения трещин на поверхности покрытия.
Ж.6 Обработка результатов измерений
За результат испытаний принимают минимальный изгиб Т, при котором испытуемое органическое покрытие осталось неповрежденным.
Ж.7 Испытания проводят на двух образцах. За окончательный результат испытаний принимают максимальный изгиб Т из двух образцов.
ПРИЛОЖЕНИЕ И (обязательное). Метод измерения твердости полимерного покрытия (метод карандаша)
ПРИЛОЖЕНИЕ И
(обязательное)
И.1 Условия измерений
При выполнении измерений соблюдают следующие условия:
- температура воздуха в рабочем помещении - (20±5) °С;
- относительная влажность воздуха в рабочем помещении - (50±5)%.
И.2 Метод измерения
Метод измерения относительной твердости полимерного покрытия от 6В до 6Н основан на образовании механических повреждений при воздействии на покрытие карандашами различной степени твердости.
И.3 Средства измерений, вспомогательные устройства, материалы
Набор маркировочных карандашей фирмы KOH-I-NOR, имеющих твердость по шкале (в порядке возрастания): 6В, 5В, 4В, 3В, 2В, В, НВ, F, Н, 2Н, ЗН, 4Н, 5Н, 6Н.
Психрометр любого типа, обеспечивающий измерение относительной влажности от 30% до 80% с погрешностью не более 10%.
Термометр, обеспечивающий измерение температуры в помещении от 0 °С до 35 °С, с ценой деления 0,5 °С.
Наждачная бумага с мелким зерном типа П2Г51СМ50Н48 по ГОСТ 6456 или любая другая, имеющая аналогичные технические характеристики.
Ластик.
И.4 Подготовка к выполнению измерений
Карандаши затачивают таким образом, чтобы грифель был без зазубрин и имел цилиндрическую форму, выступал на 6 мм либо из дерева, либо из зажима (при использовании держателя). Грифель затем подтачивают наждачной бумагой для достижения плоской торцевой поверхности.
Гладкая поверхность покрытия дает более точные результаты испытаний, но метод применим и к текстурированным поверхностям. Чем более резко выражена текстура, тем менее надежны результаты испытаний.
И.5 Выполнение измерений
Подготовленным карандашом нажимают сильно, насколько это возможно, не сломав грифель, и двигают по покрытию от себя, пытаясь снять поверхность покрытия. После каждого испытания карандаш или грифель следует подтачивать наждачной бумагой.
Это испытание проводят вручную, но для лучшей сходимости результатов и более точных измерений можно использовать механическое приспособление, в этом случае к грифелю следует приложить усилие 7,5 Н. Проводят серию испытаний до тех пор, пока не будет определен самый твердый грифель, не снимающий поверхность покрытия на минимальную длину 3 мм. Перед осмотром поверхности остатки грифеля следует удалить ластиком с образца. Испытания проводят на трех образцах.
И.6 Обработка результатов измерений
За окончательный результат испытаний принимают твердость карандаша, не снявшего поверхность покрытия на длине 3 мм, на трех образцах.
ПРИЛОЖЕНИЕ К (обязательное). Метод измерения цветового различия материалов с полимерным покрытием
ПРИЛОЖЕНИЕ К
(обязательное)
Данный метод не применим для образцов, проявляющих флюоресценцию, сильный метамеризм, многоцветных, перламутровых.
К.1 Условия измерений
При выполнение измерений соблюдают следующие условия:
- температура воздуха в рабочем помещении - (20 ± 5) °С;
- относительная влажность воздуха в рабочем помещении - (50 ± 5)%.
К.2 Метод измерения
Данный метод измерения цветового различия материалов с полимерным покрытием основан на измерении цветовых координат X, Y, Z стандартного и испытуемого образцов и последующем расчете цветового контраста при использовании данных координат цвета.
К.3 Средства измерений, вспомогательные устройства, материалы
Спектрофотометр типа SPECTRO-COLOR или любого другого типа, имеющий аналогичные технические и метрологические характеристики:
стандартный наблюдатель 2° и 10°;
диаметр апертуры 20 мм;
источник освещения Д65;
геометрия осветительная 45°/0°;
интегрирующая сфера d/8".
Комплект отражающих образцов цвета любого типа, применяющийся при данном методе измерения цветового контраста и соответствующий данному типу прибора.
Термометр, обеспечивающий измерение температуры в помещении от 0 °С до 35 °С, с ценой деления 0,5 °С.
Психрометр любого типа, обеспечивающий измерение относительной влажности от 30% до 80% с погрешностью не более 10%.
К.4 Подготовка к выполнению измерений
К.4.1 Размеры образцов для измерения цветового различия должны быть не менее размеров измерительной апертуры прибора. Поверхность образцов должна быть плоской, без механических повреждений, загрязнений.
Для темных насыщенных цветов (например синих, коричневых, черных) и для ярких цветов (например красных, желтых) погрешность результатов измерений цветового различия может быть большой. В данном случае используют метод визуального сравнения.
К.5 Порядок выполнения измерений
При калибровке прибора и при выполнении измерений руководствуются инструкцией к прибору.
К.6 Обработка результатов измерений
За результат измерений принимают среднеарифметическое трех параллельных определений цветового контраста. Результаты измерений цветового контраста материалов с полимерным покрытием определяют с точностью до десятых долей.
ПРИЛОЖЕНИЕ Л (обязательное). Метод измерения блеска полимерного покрытия
ПРИЛОЖЕНИЕ Л
(обязательное)
Л.1 Условия измерений
При выполнении измерений соблюдают следующие условия:
- температура воздуха в рабочем помещении - (20±5) °С;
- относительная влажность воздуха в рабочем помещении - (50±5)%.
Л.2 Метод измерения
Фотоэлектрический метод измерения блеска полимерного покрытия в диапазоне измерений от 5 до 100 единиц основан на возбуждении фототока в фотоприемнике под действием пучка света, отраженного от поверхности испытуемого покрытия, и измерении фототока.
Л.3 Средства измерений, вспомогательные устройства, материалы
Фотоблескомер типа VGS-1D или любой другой, имеющий аналогичные технические и метрологические характеристики:
диапазон измерения единиц блеска 0-100 ед. блеска;
геометрия 20°/20°, 60/60°, 85/85°;
погрешность прибора не более 2 ед. блеска.
Комплект образцов блеска, применяющийся при фотоэлектрическом методе измерения блеска, соответствующий данному типу прибора.
Психрометр любого типа, обеспечивающий измерение относительной влажности от 30% до 80% с погрешностью не более 10%.
Термометр, обеспечивающий измерение температуры в помещении от 0 °С до 35 °С, с ценой деления 0,5 °С.
Л.4 Подготовка к выполнению измерений
Л.4.1 Для измерения блеска используют гладкие и плоские образцы, размеры которых больше размеров апертуры.
Л.4.2 Для измерения блеска используют три угла:
60° - для определения блеска от 0 до 100 единиц;
20° - для образцов, которые при геометрии 60° имеют блеск более 70 единиц;
85° - для образцов, которые при геометрии 60° имеют блеск менее 15 единиц.
Л.5 Порядок выполнения измерений
Л.5.1 Прибор настраивают посредством определения блеска двух пластинок. Если результаты измерения блеска пластинки отличаются более чем на ±1,5 единицы от их аттестованного значения, прибор следует отрегулировать.
Л.5.2 Блеск образца с покрытием определяют на приборе и показания блеска записывают.
Л.5.3 Проводят не менее трех измерений блеска на различных образцах.
Л.6 Обработка результатов измерений
За результат измерений принимают среднеарифметическое параллельных определений блеска полимерного покрытия.
Л.7 Окончательный результат определения блеска округляют до целого числа.
Л.8 Погрешность данного метода определяется погрешностью применяемого прибора.
ПРИЛОЖЕНИЕ М (справочное). Библиография
ПРИЛОЖЕНИЕ М
(справочное)
[1] ИСО 1043-1-2001* Пластмассы. Условные обозначения и сокращения. Часть 1. Основные полимеры и их специфические характеристики
_________________
* Международный стандарт - во ВНИИКИ Госстандарта России.
[2] СП 1.1.1058-2001 Организация и проведение производственного контроля за соблюдением санитарных правил и выполнением санитарно-противоэпидемических (профилактических) мероприятий
УДК 669.14-413:006.354 | ОКС 77.140.50 | В33 | ОКП 11 1200 | |||
Ключевые слова: прокат, полимерное покрытие, применение, основные параметры, технические требования, методы контроля, требования безопасности, испытание на прочность, адгезия, изгиб, твердость (метод карандаша), цветовой контраст, измерение блеска | ||||||
Электронный текст документа
подготовлен АО "Кодекс" и сверен по:
официальное издание
М.: ИПК Издательство стандартов, 2004
Редакция документа с учетом
изменений и дополнений подготовлена
АО "Кодекс"
Разместите заказ
сами сделают вам предложение
